| 価格 | 650万円 ![]() |
||||
|---|---|---|---|---|---|
| 所在地 | 北海道帯広市西十二条南12丁目 1-12
この地域周辺の物件を見る |
土地面積 | 165.33m² (50.01坪) | 建物面積 | 77.46u(23.43坪) |
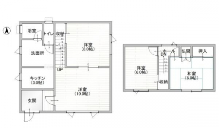
| 築年月 | 1990年9月築 | 間取り | 4DK (洋室8/LD10/K3/洋室6/和室6) | ||
| 交通 |
JR根室本線 帯広/徒歩21分
|
||||
電話をかける(携帯・PHS可)
0155-23-2828
「ホームページを見た」とお伝え下さい。
お問い合わせ番号をお伝えください
RHS-133301-1652
| 特徴 |
|
|---|---|
| セールスコメント | - |
| 採光面 | - | 構造/階数 | 木造/地上2階建 |
|---|---|---|---|
| 建ぺい率 | 60(%) | 容積率 | 200(%) |
| 駐車場 | 有 | 現況/引渡し | 空家/相談 |
| 土地権利 | 所有権 | 私道負担面積 | - |
| 接道状況 | 接道: 南 2.71m 公道 道路幅: 10.9m | 用途地域 | 第一種住居地域
|
| セットバック | - | 法令上の制限 | - |
| 地目 | 宅地 | 地勢 | 平坦 |
| 建築確認番号 | 都市計画 | 市街化区域 | |
| 取引態様 | 専任媒介 | ||
| 情報更新日 | 2025年12月17日 | 次回更新日 | 2025年12月31日 |
| 小学校区 | 帯広市立緑丘小学校 (北海道帯広市) この学区の他の物件を見る |
中学校区 | 帯広第五中学校 (北海道帯広市) この学区の他の物件を見る |
|---|
電話をかける(携帯・PHS可)
0155-23-2828
「ホームページを見た」とお伝え下さい。
お問い合わせ番号をお伝えください
RHS-133301-1652
| 年利率 | % |
||
|---|---|---|---|
| ボーナス払い | 返済年数 | ||
| 頭金 | 直接入力する | 万円 | |

毎月のご返済額 |
ボーナス(×年2回) |
物件価格650万円 |
電話でお問い合わせ
株式会社ネクストワン
|
電話をかける 0155-23-2828 ※「ホームページを見た」とお伝えください。 |
お問い合わせ番号をお伝えください RHS-133301-1652 |
|---|
お手頃な価格の平成築の中古戸建です♪
使い勝手の良い4DK♪